Villa singola in vendita

Pizzighettone, Via Carlo Pisacane
€ 209.000
7 locali 7 locali
488 Mq 488 Mq
2 bagni 2 bagni

Villa singola in vendita

Pizzighettone, Via Carlo Pisacane

Descrizione annuncio

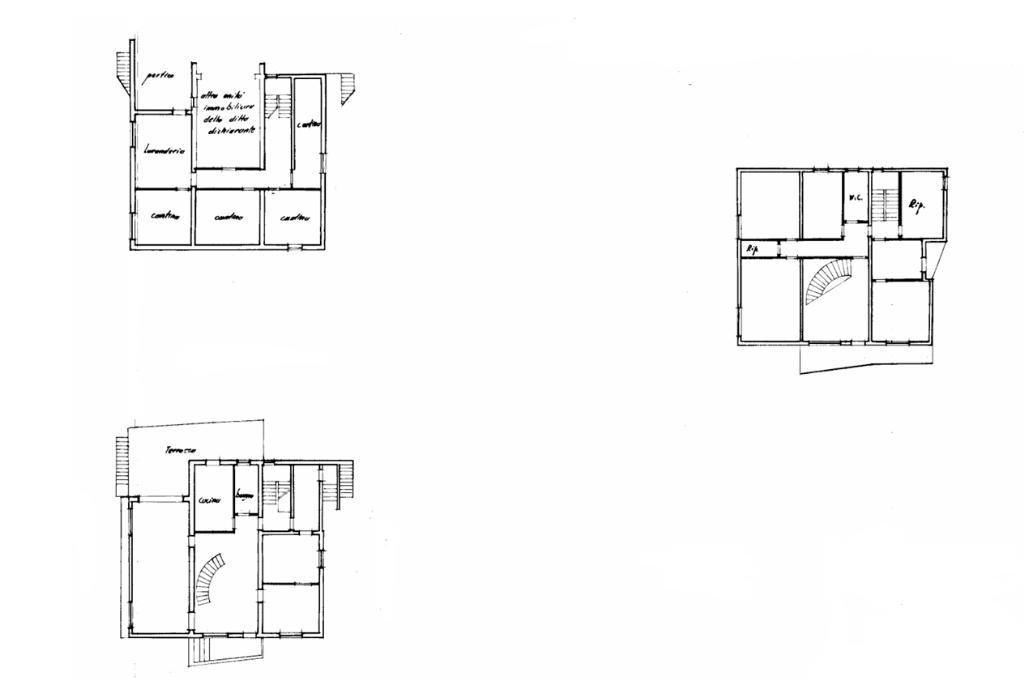
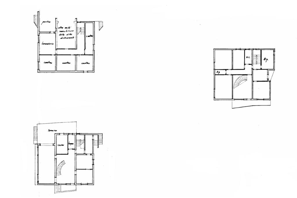
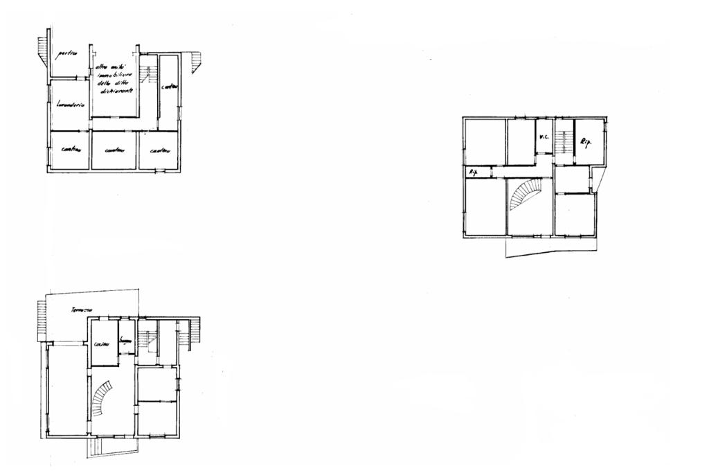
Nel comune di Pizzighettone, proponiamo in vendita una villa singola di circa 500 mq. Questa proprietà si distingue per la sua versatilità e spaziosità, ideale per accogliere nuclei familiari numerosi o per essere suddivisa in due appartamenti distinti grazie al doppio ingresso. Gli ambienti interni sono caratterizzati da una luminosità naturale che valorizza ogni spazio, rendendo l'atmosfera accogliente e confortevole. Gli ampi spazi offrono molteplici possibilità di personalizzazione, permettendo di adattare la villa alle esigenze specifiche di chi la abiterà. La struttura solida e ben mantenuta rappresenta una soluzione abitativa interessante per chi cerca una residenza che coniughi privacy e funzionalità. La posizione nel tranquillo contesto di Pizzighettone aggiunge ulteriore valore, offrendo un ambiente sereno e ben collegato ai principali servizi.

Mostra tutto

Nelle vicinanze

Trasporto pubblico Trasporto pubblico
Pizzighettone
Pizzighettone
950 m
Trasporto pubblico
490 m
Ponte d'Adda
Ponte d'Adda
520 m
Scuole Scuole
Scuole
130 m
Farmacia Farmacia
Farmacia
370 m
Farmacia Vigani
2,8 Km
Supermercati Supermercati
Famila
280 m
Lidl
560 m
Italmark
990 m
Bar Bar
Les Pailles
90 m
Ristoranti Ristoranti
Pizzeria Ristorante il Giardino
430 m
Ristoranti
610 m
Trattoria Lago Segugio
2,8 Km
Mostra tutto

Caratteristiche

Rif.:
61209317
Piano:
Su più livelli di 2
Totale piani:
2
Box:
1
Balconi:
2
Terrazzi:
1
Mostra tutto
Prezzo Prezzo
€ 209.000
Rata mutuo Rata mutuo
€ 992 / mese
Spese annue Spese annue
€ 0
Proponi il tuo prezzoProponi il tuo prezzo
Immobile valutato con T·Valuta

Classe Energetica

G
G
G
G
G
G
G
G
G
EP invernale del fabbricato:
EP estiva del fabbricato:
Anno di costruzione:
1970
Riscaldamento:
Autonomo
Tipo impianto:
Ad aria
Tipo alimentazione:
Metano

Ti interessa visionare l'immobile?

Fissa un appuntamento  Fissa un appuntamento

Richiedi informazioni

Clicca su Leggi per aprire l'informativa
* Questi campi sono obbligatori

Calcola il tuo mutuo

Semplice e senza impegno
Anticipo

( % )
Mutuo

( % )

pochi semplici passi

inserisci i tuoi dati
Questionario completato
Grazie per aver richiesto un appuntamento senza impegno con un nostro Consulente del Credito e Assicurativo.

Hai inserito correttamente tutti i dati necessari e a breve riceverai una e-mail con un link da convalidare per inviare i tuoi dati.
Affiliato
Tecnocastelleone Srl
Via Roma, 47 26012 Castelleone (CR)

Il nostro staff


  • Claudio Pezzotti
    Affiliato

  • Silvia Bonardi
    Collaboratrice

  • Marta Rocchetta
    Responsabile
Via Roma, 47 26012 Castelleone (CR)
Zona: Castelleone-Pizzighettone-Fiesco-Montodine
Mostra su mappa
Affiliato
Tecnocastelleone Srl
Via Roma, 47 26012 Castelleone (CR)

2026 Tecnocasa Franchising S.p.A. - P. IVA 08365160152 - Via Monte Bianco 60/A 20089 Rozzano (MI). Ogni agenzia ha un proprio titolare ed è autonoma. Privacy policy | Policy utilizzo | Cookie policy