Casa indipendente in vendita

Paderno Ponchielli, Via Attilio Lazzari - Ossolaro
€ 65.000
4 locali 4 locali
131 Mq 131 Mq
1 bagno 1 bagno

Casa indipendente in vendita

Paderno Ponchielli, Via Attilio Lazzari - Ossolaro

Descrizione annuncio

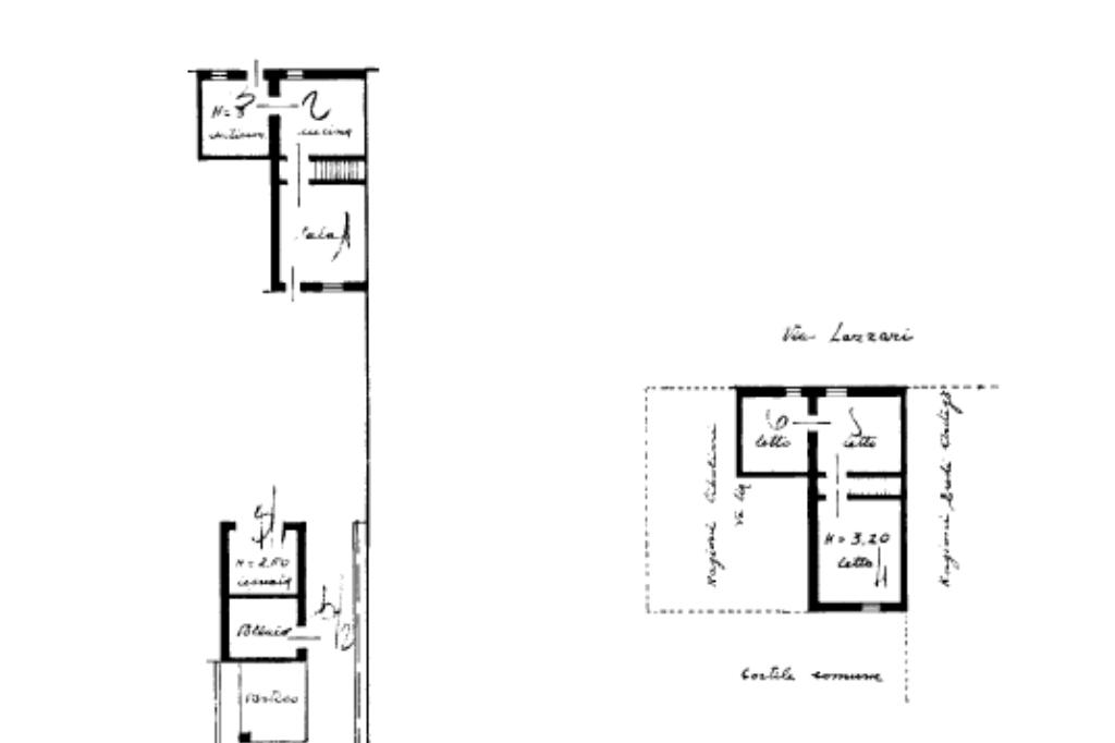
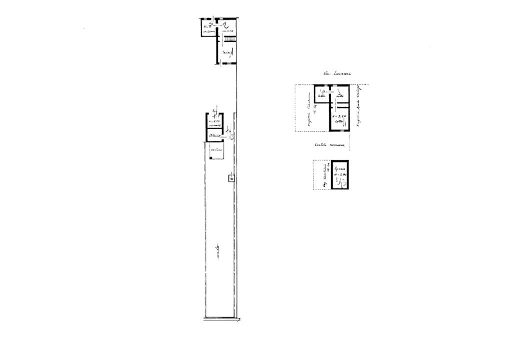
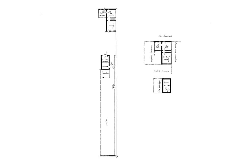
PADERNO PONCHIELLI: proponiamo in vendita abitazione indipendente disposta su due livelli così composta: ingresso al piano terra su soggiorno, cucina abitabile, bagno e sottoscala, salendo le scale accediamo alla zona notte composta da tre camere da letto. A completare la soluzione rustico disposto su due livelli (da poter adibire a box) e giardino.

Mostra tutto

Caratteristiche

Rif.:
61154002
Piano:
Su più livelli di 1
Totale piani:
1
Camere da letto:
3
Arredamento:
Parziale
Condizionamento:
Assente
Mostra tutto
Prezzo Prezzo
€ 65.000
Rata mutuo Rata mutuo
€ 306 / mese
Spese annue Spese annue
€ 0
Proponi il tuo prezzoProponi il tuo prezzo

Classe Energetica

G
G
G
G
G
G
G
G
G
Anno di costruzione:
1966
Riscaldamento:
Autonomo
Tipo impianto:
A radiatori
Tipo alimentazione:
Metano

Ti interessa visionare l'immobile?

Fissa un appuntamento  Fissa un appuntamento

Richiedi informazioni

Clicca su Leggi per aprire l'informativa
* Questi campi sono obbligatori

Calcola il tuo mutuo

Semplice e senza impegno
Anticipo

( % )
Mutuo

( % )

pochi semplici passi

inserisci i tuoi dati
Questionario completato
Grazie per aver richiesto un appuntamento senza impegno con un nostro Consulente del Credito e Assicurativo.

Hai inserito correttamente tutti i dati necessari e a breve riceverai una e-mail con un link da convalidare per inviare i tuoi dati.
Affiliato
Tecnocastelleone Srl
Via Roma, 37 26012 Castelleone (CR)

Il nostro staff


  • Claudio Pezzotti
    Affiliato

  • Silvia Bonardi
    Collaboratrice

  • Marta Rocchetta
    Responsabile
Via Roma, 37 26012 Castelleone (CR)
Zona: Castelleone-Pizzighettone-Fiesco-Montodine
Mostra su mappa
Affiliato
Tecnocastelleone Srl
Via Roma, 37 26012 Castelleone (CR)

2026 Tecnocasa Franchising S.p.A. - P. IVA 08365160152 - Via Monte Bianco 60/A 20089 Rozzano (MI). Ogni agenzia ha un proprio titolare ed è autonoma. Privacy policy | Policy utilizzo | Cookie policy