Villa a schiera in vendita

Montodine, Via Camillo Benso Conte di Cavour
€ 240.000
3 locali 3 locali
93 Mq 93 Mq
1 bagno 1 bagno

Villa a schiera in vendita

Montodine, Via Camillo Benso Conte di Cavour

Descrizione annuncio

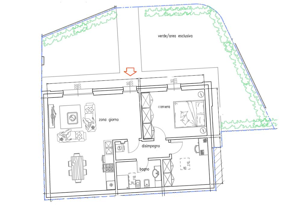
Nel comune di Montodine, proponiamo in vendita una moderna villetta di nuova costruzione all'interno di una corte. Questa abitazione, di 93 mq, si sviluppa interamente al piano terra, offrendo la comodità di una villetta tutta su un piano. La proprietà include un giardino privato, ideale per momenti di relax all'aperto. All'interno, l'ampia e luminosa zona giorno rappresenta il cuore della casa, perfetta per accogliere amici e familiari. La soluzione dispone di due camere da letto, garantendo spazio e comfort per tutta la famiglia. Il riscaldamento a pavimento assicura un ambiente accogliente durante i mesi più freddi, mentre i locali climatizzati offrono sollievo nelle giornate estive. Completa l'offerta la possibilità di aggiungere un box o un posto auto all'interno della corte, per una soluzione abitativa che unisce praticità e modernità.

Mostra tutto

Nelle vicinanze

Trasporto pubblico Trasporto pubblico
Trasporto pubblico
100 m
Scuole Scuole
Scuole
170 m
Scuola elementare A. Caprotti
2,2 Km
Farmacia Farmacia
Farmacia
170 m
Supermercati Supermercati
Alimentari Giulia Manenti
2,4 Km
Bar Bar
bar Pineta
40 m
Bar
70 m
Ristoranti Ristoranti
Trattoria Speranza
130 m
Pizzeria Bucalì
390 m
Ristoranti
400 m
Agriturismo La Sorgente
860 m
Trattoria Toscanini
2,1 Km
Mostra tutto

Caratteristiche

Rif.:
61124898
Piano:
Terra di 1
Totale piani:
1
Camere da letto:
2
Arredamento:
Assente
Condizionamento:
Autonomo
Mostra tutto
Prezzo Prezzo
€ 240.000
Rata mutuo Rata mutuo
€ 1.106 / mese
Spese annue Spese annue
€ 0
Proponi il tuo prezzoProponi il tuo prezzo

Classe Energetica

A2
A2
A2
A2
A2
A2
A2
A2
A2
EP invernale del fabbricato:
EP estiva del fabbricato:
Anno di costruzione:
2025
Riscaldamento:
Autonomo
Tipo impianto:
A pavimento
Tipo alimentazione:
Altro

Ti interessa visionare l'immobile?

Fissa un appuntamento  Fissa un appuntamento

Richiedi informazioni

* Questi campi sono obbligatori

Calcola il tuo mutuo

Semplice e senza impegno
Anticipo

( % )
Mutuo

( % )

pochi semplici passi

inserisci i tuoi dati
Questionario completato
Grazie per aver richiesto un appuntamento senza impegno con un nostro Consulente del Credito e Assicurativo.

Hai inserito correttamente tutti i dati necessari e a breve riceverai una e-mail con un link da convalidare per inviare i tuoi dati.
Affiliato
Tecnocastelleone Srl
Via Roma, 37 26012 Castelleone (CR)

Il nostro staff


  • Claudio Pezzotti
    Affiliato

  • Silvia Bonardi
    Collaboratrice

  • Marta Rocchetta
    Responsabile
Via Roma, 37 26012 Castelleone (CR)
Zona: Castelleone-Pizzighettone-Fiesco-Montodine
Mostra su mappa
Affiliato
Tecnocastelleone Srl
Via Roma, 37 26012 Castelleone (CR)

2025 Tecnocasa Franchising S.p.A. - P. IVA 08365160152 - Via Monte Bianco 60/A 20089 Rozzano (MI). Ogni agenzia ha un proprio titolare ed è autonoma. Privacy policy | Policy utilizzo | Cookie policy