Palazzina in vendita

Castiglione D'Adda, Via Camillo Benso di Cavour
€ 189.000
10 locali 10 locali
406 Mq 406 Mq
3 bagni 3 bagni

Palazzina in vendita

Castiglione D'Adda, Via Camillo Benso di Cavour

Descrizione annuncio

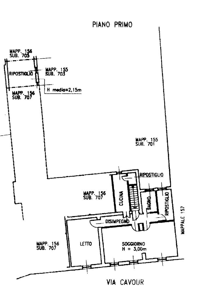
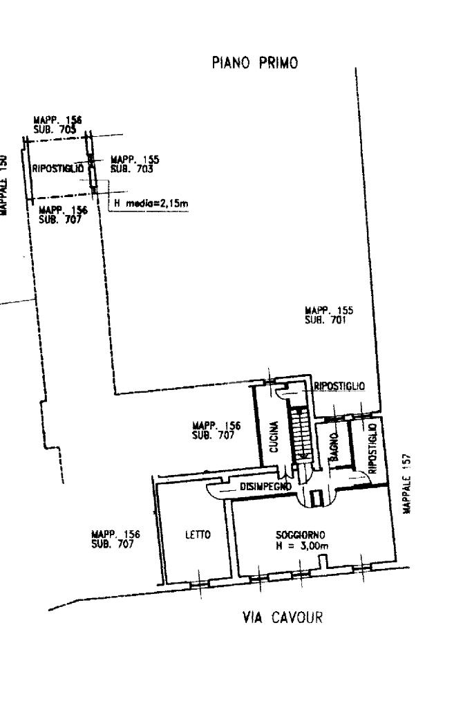
Nel cuore di Castiglione d'Adda, proponiamo in vendita un'interessante palazzina di 406 mq, che offre diverse opportunità abitative e commerciali. Il complesso è composto da tre unità: due spaziosi appartamenti trilocali, rispettivamente di 105 mq e 109 mq, ideali per famiglie o per chi cerca ampi spazi abitativi. Al piano terra, un ristorante di 192 mq offre la possibilità di trasformazione in residenziale, ampliando ulteriormente le potenzialità dell'immobile. Completano la proprietà due comodi box auto di 15 mq ciascuno, perfetti per garantire praticità e sicurezza. Questa soluzione si distingue per la sua versatilità, permettendo di coniugare esigenze abitative e imprenditoriali in un'unica struttura. La posizione strategica nel comune di Castiglione d'Adda rende questa proposta particolarmente interessante per chi desidera investire in una zona ben servita e in crescita.

Mostra tutto

Nelle vicinanze

Trasporto pubblico Trasporto pubblico
Trasporto pubblico
490 m
Scuole Scuole
Scuola elementare Castiglione D'adda
220 m
Scuola Media Statale "Fusari"
510 m
Scuole
520 m
Farmacia Farmacia
Farmacia Gandolfi
220 m
Farmacia Punzi
2,4 Km
Negozi Negozi
Katy & Mary
110 m
Negozi
910 m
Bar Bar
Bar
590 m
Ristoranti Ristoranti
La Colomba
2,5 Km
Mostra tutto

Caratteristiche

Rif.:
61160194
Piano:
Su più livelli di 2
Totale piani:
2
Box:
2
Camere da letto:
4
Arredamento:
Assente
Mostra tutto
Prezzo Prezzo
€ 189.000
Rata mutuo Rata mutuo
€ 897 / mese
Spese annue Spese annue
€ 0
Proponi il tuo prezzoProponi il tuo prezzo

Classe Energetica

G
G
G
G
G
G
G
G
G
EP invernale del fabbricato:
EP estiva del fabbricato:
Anno di costruzione:
1980
Riscaldamento:
Autonomo
Tipo impianto:
A radiatori
Tipo alimentazione:
Altro

Ti interessa visionare l'immobile?

Fissa un appuntamento  Fissa un appuntamento

Richiedi informazioni

Clicca su Leggi per aprire l'informativa
* Questi campi sono obbligatori

Calcola il tuo mutuo

Semplice e senza impegno
Anticipo

( % )
Mutuo

( % )

pochi semplici passi

inserisci i tuoi dati
Questionario completato
Grazie per aver richiesto un appuntamento senza impegno con un nostro Consulente del Credito e Assicurativo.

Hai inserito correttamente tutti i dati necessari e a breve riceverai una e-mail con un link da convalidare per inviare i tuoi dati.
Affiliato
Tecnocastelleone Srl
Via Roma, 47 26012 Castelleone (CR)

Il nostro staff


  • Claudio Pezzotti
    Affiliato

  • Silvia Bonardi
    Collaboratrice

  • Marta Rocchetta
    Responsabile
Via Roma, 47 26012 Castelleone (CR)
Zona: Castelleone-Pizzighettone-Fiesco-Montodine
Mostra su mappa
Affiliato
Tecnocastelleone Srl
Via Roma, 47 26012 Castelleone (CR)

2026 Tecnocasa Franchising S.p.A. - P. IVA 08365160152 - Via Monte Bianco 60/A 20089 Rozzano (MI). Ogni agenzia ha un proprio titolare ed è autonoma. Privacy policy | Policy utilizzo | Cookie policy