Villa singola in vendita

Castelleone, Via Vigne
€ 269.000
2 locali 2 locali
93 Mq 93 Mq
2 bagni 2 bagni

Villa singola in vendita

Castelleone, Via Vigne

Descrizione annuncio

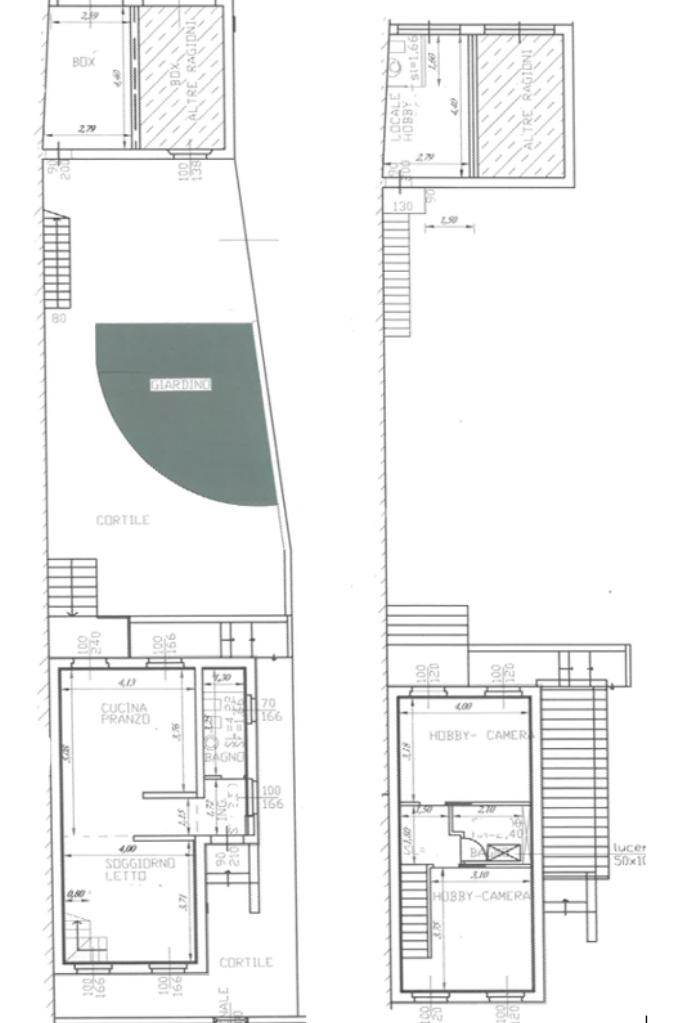
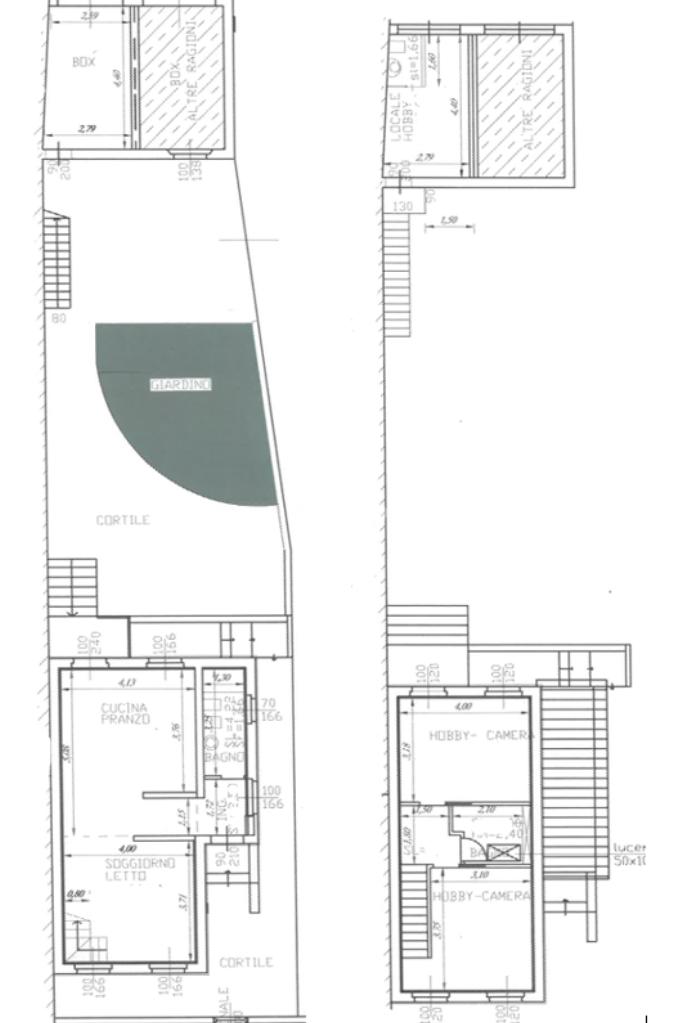
Nel comune di Castelleone, a pochi passi dal centro, proponiamo in vendita una villa singola di circa 90 mq che sarà oggetto di una ristrutturazione a nuovo. L'immobile offre un ingresso indipendente che conduce a un accogliente soggiorno con cucina al piano terra e bagno con box doccia. Al piano superiore, si trovano due camere da letto, ideali per chi cerca comfort e funzionalità ed un altro bagno con box doccia. La villa dispone inoltre di una cantina/lavanderia situata al piano seminterrato, perfetta per le esigenze di spazio aggiuntivo. All'esterno, un ampio giardino circonda la proprietà, offrendo un'oasi di tranquillità e spazio per attività all'aperto. Completano la proprietà un box auto di 12 mq e una dependance separata di 10 mq con predisposizione per bagno e riscalmento, che aggiungono ulteriore valore e versatilità all'immobile. Questa soluzione abitativa rappresenta un'opportunità unica per chi desidera vivere in un contesto riservato e ben organizzato. Possibilità di personalizzazione.

Mostra tutto

Nelle vicinanze

Trasporto pubblico Trasporto pubblico
Castelleone
Castelleone
900 m
Castelleone Paullese
Castelleone Paullese
940 m
Castelleone Seriola
Castelleone Seriola
1,1 Km
Ricariche auto elettriche Ricariche auto elettriche
Municipio di Castelleone
220 m
Scuole Scuole
Scuole
450 m
Farmacia Farmacia
Pesadori
130 m
Chiodo
310 m
Farmacia
320 m
Supermercati Supermercati
Supermercati
120 m
LD
370 m
Famila
900 m
Jin Tao - Il Mercatone
910 m
Zerbimark
960 m
Negozi Negozi
Bonizzi Germano
90 m
Forneria Zaniboni
170 m
Pasticceria Zecchini
220 m
Il Paese delle Meraviglie
660 m
Bar Bar
Zanzibar
120 m
Zico Bar
190 m
Bar Torrazzo
240 m
Meeting
270 m
Civico 4
300 m
Ristoranti Ristoranti
Da Cristina
350 m
Gemelli Diversi
430 m
Gli Oleandri
510 m
Don Felipe
860 m
Agriturismo Santa Maria in Bressanoro
1,8 Km
Mostra tutto

Caratteristiche

Rif.:
61185653
Piano:
Su più livelli
Box:
1
Posti auto:
1
Camere da letto:
2
Arredamento:
Assente
Mostra tutto
Prezzo Prezzo
€ 269.000
Rata mutuo Rata mutuo
€ 1.277 / mese
Spese annue Spese annue
€ 0
Proponi il tuo prezzoProponi il tuo prezzo

Classe Energetica

A4
A4
A4
A4
A4
A4
A4
A4
A4
EP invernale del fabbricato:
EP estiva del fabbricato:
Anno di costruzione:
1970
Riscaldamento:
Autonomo
Tipo impianto:
Ad aria
Tipo alimentazione:
Altro

Ti interessa visionare l'immobile?

Fissa un appuntamento  Fissa un appuntamento

Richiedi informazioni

Clicca su Leggi per aprire l'informativa
* Questi campi sono obbligatori

Calcola il tuo mutuo

Semplice e senza impegno
Anticipo

( % )
Mutuo

( % )

pochi semplici passi

inserisci i tuoi dati
Questionario completato
Grazie per aver richiesto un appuntamento senza impegno con un nostro Consulente del Credito e Assicurativo.

Hai inserito correttamente tutti i dati necessari e a breve riceverai una e-mail con un link da convalidare per inviare i tuoi dati.
Affiliato
Tecnocastelleone Srl
Via Roma, 47 26012 Castelleone (CR)

Il nostro staff


  • Claudio Pezzotti
    Affiliato

  • Silvia Bonardi
    Collaboratrice

  • Marta Rocchetta
    Responsabile
Via Roma, 47 26012 Castelleone (CR)
Zona: Castelleone-Pizzighettone-Fiesco-Montodine
Mostra su mappa
Affiliato
Tecnocastelleone Srl
Via Roma, 47 26012 Castelleone (CR)

2026 Tecnocasa Franchising S.p.A. - P. IVA 08365160152 - Via Monte Bianco 60/A 20089 Rozzano (MI). Ogni agenzia ha un proprio titolare ed è autonoma. Privacy policy | Policy utilizzo | Cookie policy